FLOOR PLANS

Space in excess of 6,000 sq. ft. per unit,
the largest of its kind in Petaling Jaya.

From majestic halls to large rooms and sprawling gardens with calming water features - immerse in the sheer wealth of space. At over 6,000 sq. ft. per unit, the villas here are the largest of its kind in Petaling Jaya, promising an unparalleled quality of life.

Download Plans & Specifications

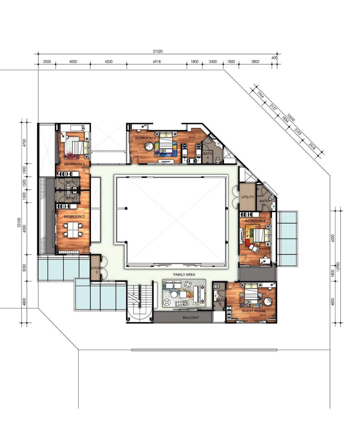
Ground Floor

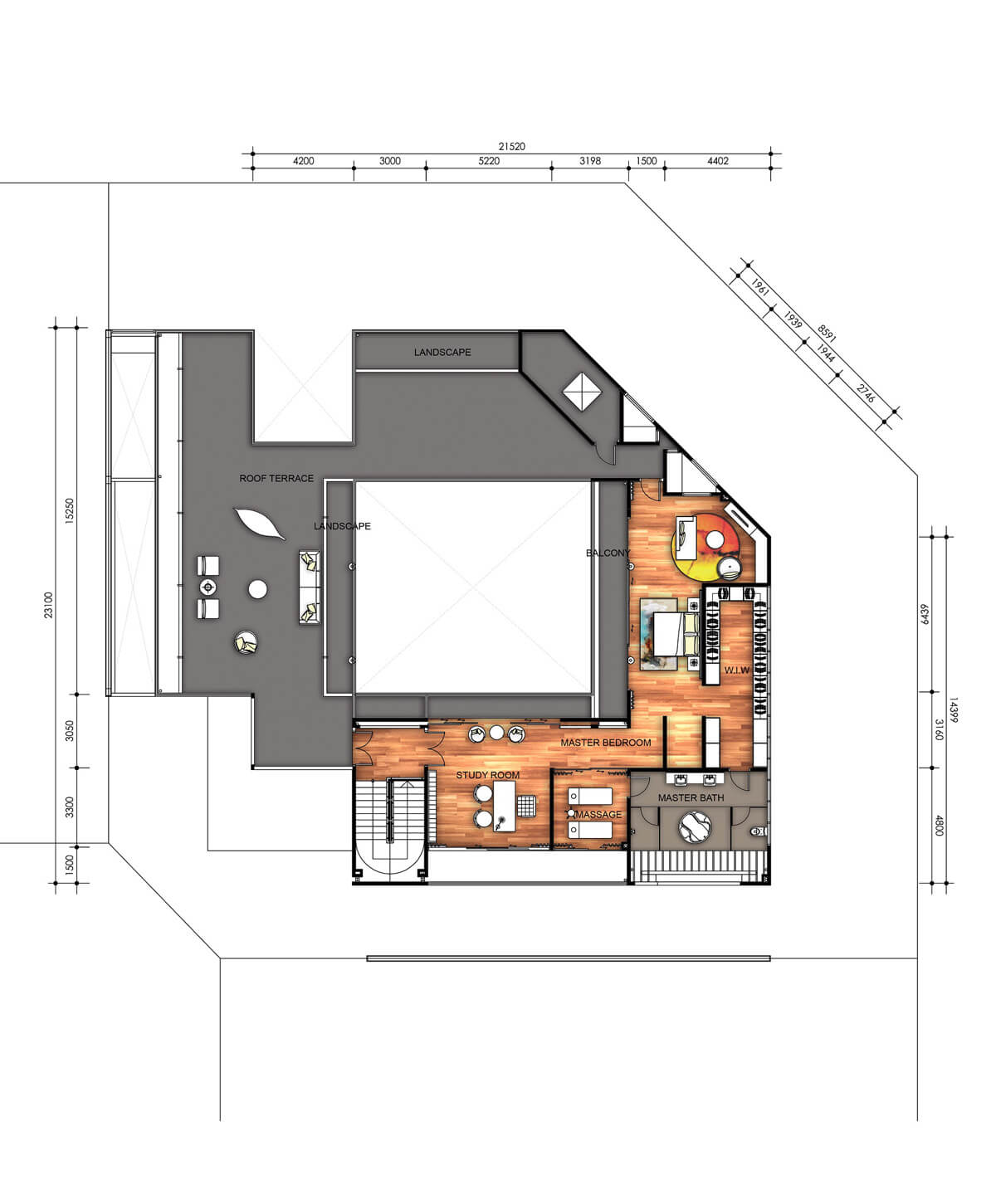
1st Floor

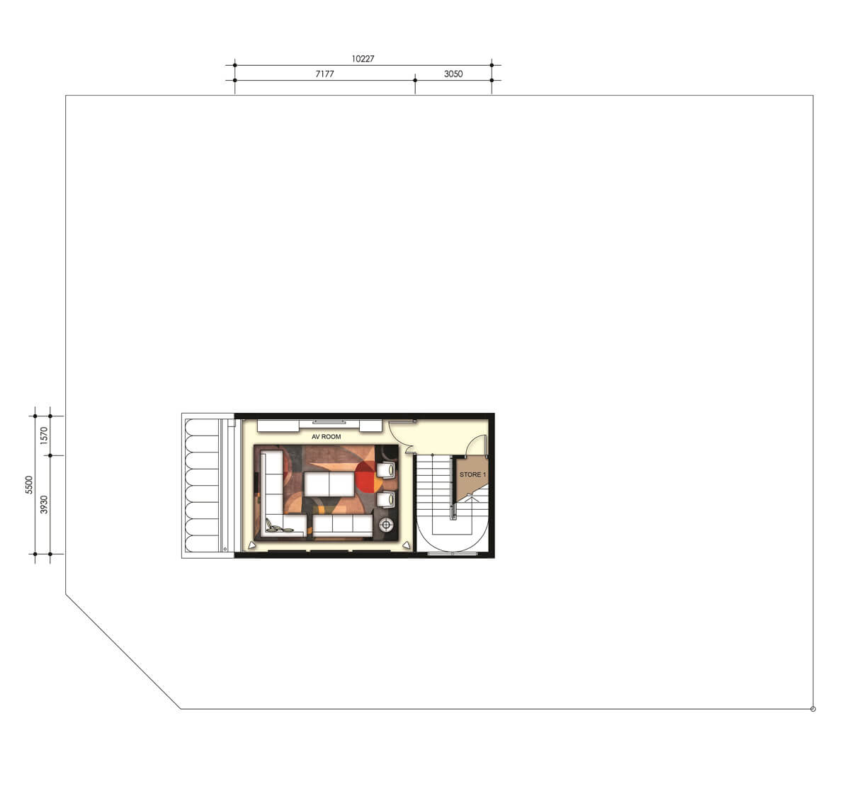
2nd Floor

PHASE 1
TYPE A

Land area: 4,000 sq. ft. - 4,951 sq. ft.
Built-up area: 5,942 sq. ft.
Bedrooms: 6 + 1
Bathrooms: 7

Ground Floor

1st Floor

2nd Floor

PHASE 1
TYPE B

Land area: 4,000 sq. ft. - 4,951 sq. ft.
Built-up area: 5,933 sq. ft.
Bedrooms: 6 + 1
Bathrooms: 8

Ground Floor

1st Floor

2nd Floor

PHASE 1
TYPE B1

Land area: 4,500 sq. ft.
Built-up area: 6,115 sq. ft.
Bedrooms: 6 + 1
Bathrooms: 8

Ground Floor

1st Floor

2nd Floor

Lower Ground Floor

PHASE 1
TYPE C

Land area: 7,685 sq. ft.
Built-up area: 7,850 sq. ft.
Bedrooms: 6 + 1
Bathrooms: 7

Ground Floor

1st Floor

2nd Floor

PHASE 1
TYPE D

Land area: 6,480 sq. ft.
Built-up area: 6,879 sq. ft.
Bedrooms: 6 + 1
Bathrooms: 7

Ground Floor

1st Floor

2nd Floor

Lower Ground Floor

PHASE 1
TYPE E

Land area: 10,753 sq. ft.
Built-up area: 12,713 sq. ft.
Bedrooms: 6 + 2
Bathrooms: 9

Ground Floor

1st Floor

2nd Floor

PHASE 1
TYPE F

Land area: 4,750 sq. ft.
Built-up area: 6,717 sq. ft.
Bedrooms: 6 + 1
Bathrooms: 7

Ground Floor

1st Floor

2nd Floor

PHASE 1
TYPE G

Land area: 7,750 sq. ft.
Built-up area: 8,720 sq. ft.
Bedrooms: 6 + 1
Bathrooms: 8

Ground Floor

1st Floor

2nd Floor

PHASE 1
TYPE RB

Land area: 3,680 - 3,760sq. ft.
Built-up area: 5,654 sq. ft.
Bedrooms: 6 + 1
Bathrooms: 7

Let's Chat!

Our sales advisors are available to assist you.

By clicking "Chat NOW!", you are agree and accept the terms and conditions of the Website Terms of Use, PDPA Consent and Privacy Notice of Bandar Utama Development Sdn. Bhd.

Let's Chat!

Our leasing advisors are available to assist you.

By clicking "Chat NOW!", you are agree and accept the terms and conditions of the Website Terms of Use, PDPA Consent and Privacy Notice of Bandar Utama Development Sdn. Bhd.