FLOOR PLANS

Space in excess of 6,000 sq. ft. per unit,
the largest of its kind in Petaling Jaya.

From majestic halls to large rooms and sprawling gardens with calming water features - immerse in the sheer wealth of space. At over 6,000 sq. ft. per unit, the villas here are the largest of its kind in Petaling Jaya, promising an unparalleled quality of life.

Download Plans & Specifications

Ground Floor

1st Floor

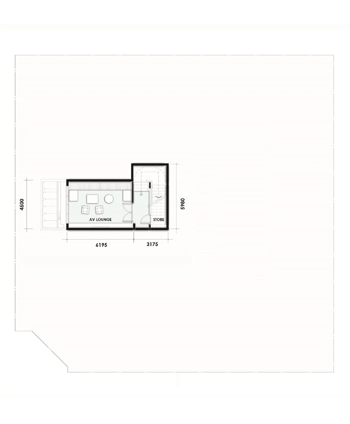
2nd Floor

PHASE 2A
TYPE A

Land area: 4,252 sq. ft. - 5,274 sq. ft.
Built-up area: 6,614 sq. ft.
Bedrooms: 6 + 1
Bathrooms: 7

Ground Floor

1st Floor

2nd Floor

Lower Ground Floor

PHASE 2A
TYPE B

Land area: 9,009 sq. ft.
Built-up area: 11,985 sq. ft.
Bedrooms: 8 + 1
Bathrooms: 8

Let's Chat!

Our sales advisors are available to assist you.

By clicking "Chat NOW!", you are agree and accept the terms and conditions of the Website Terms of Use, PDPA Consent and Privacy Notice of Bandar Utama Development Sdn. Bhd.

Let's Chat!

Our leasing advisors are available to assist you.

By clicking "Chat NOW!", you are agree and accept the terms and conditions of the Website Terms of Use, PDPA Consent and Privacy Notice of Bandar Utama Development Sdn. Bhd.